80㎡北欧极简,刚需房无阳台也得有颜值
其实像这种两室刚需,而且南向的户型是最多了,在做了这么多年装修的过程中,出现的频率也最多,所以对于这种户型太多非常成熟的案例,百度都可以给你方案。奉劝大家睁大眼睛,不要这么大房子也掏设计费了,这是钱多烧得慌。你就是设计个底朝天,也只是两室刚需,需要你设计费?那装修公司难道零利润施工?
因为此套房的业主目前暂时还是单身,所以在装修上倾向于木地板,虽然地暖增加了污染的风险,但是无小孩,进几年没有结婚的需求,所以无需多虑。同时准备儿童房都采用定制人造板多层去做,等到N年以后孩子分房,已经无后顾之忧了。
户型:两室刚需无阳台
面积:80㎡
入住人口:暂时一人,未婚
风格:北欧现代
造价:半包3.8万,主材4.5万,入住15万

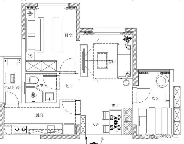
▲非常标准的刚需户型,纯南朝向,进门就是餐客厅一体一通到底,无阳台。右手是一间次卧,左手依次是厨房带洗衣间,唯一卫生间和主卧。因为没有单独生活阳台,所以厨房的洗衣间必须保留,次卧太小,只能用榻榻米来合理利用空间以及增加收纳

▲进门左手厨房门口刚好利用空间定制通顶收纳鞋柜,满足进门的鞋子收纳。上下镂空便于进门放包包钥匙以及随手放鞋。
因为通顶做鞋柜会显得压抑,必须吊顶处理,但是进门一直延伸至电视墙,吊顶的费用就多了,为了节省费用,只在鞋柜上方做了假吊顶处理,这样就形成了客餐厅的刀把结构,总体不影响入住

▲进门右手角落是餐厅,地方小,为了增加收纳,定制卡座和原木餐桌椅的搭配,又有颜值,又能满足一定的收纳。空间太小,无法做餐边柜,卡座上方挂画点缀,如果取而代之是吊柜的话,是能增加储物,但是会让小空间显得更加压抑,进门口还是美观一点比较好

▲客餐厅全景,这就是典型的三层铁律配色《墙+地+门和踢脚线,3层次搞定装修》灰色墙面搭配白色木门以及踢脚线,原木家具搭配,彩色软配点缀,永远不会出错的配色,这个压根无需设计,也无需掏什么设计费。注意鞋柜上方局部吊顶,为了省钱只能让客餐厅有个刀把,宽边无法形成四方整体,但是节省了一部分吊顶费用,否则吊顶需要一直通到电视墙位置了

▲客厅无阳台,而且跨度很小,所以三人位蓝色沙发搭配双圆几,木色电视柜与餐桌统一呼应,黑白配的地毯提升空间层次。

▲风管机刚好布置在客厅窗户上方,也能节省吊顶和管路的费用。米色窗帘以及纱帘搭配,视觉更清爽简洁,不至于小户型视觉压抑。电视墙干干净净,变色即可,为什么要把钱花到面子上呢?

▲主卧延续客厅风格,蓝色窗帘与纱帘清爽搭配,统一的原木家具,背景几何形状的壁纸突出层次感

▲空间很小,仅能容纳最基本的配置,所以简洁的木质床头能让视觉更简洁,两盏白色轻巧台灯配置满足局部照明需求

▲为了定制衣柜不至于压抑,同时为了石膏线后续不用修补,提前做了假吊顶处理。平开门衣柜门与床头柜冲突,又不想断开,干脆就用一扇门开启满足收纳,靠内的衣柜门可以不用《衣柜通顶,上头石膏线怎么办?》

▲次卧属于长条形,所以为了满足功能和收纳,采用定制榻榻米衣柜书桌一体的做法,空间更能合理利用。大面积白色与木色套色,清新温馨

▲书柜做高也够不到,同时上方还有挂机空调,所以干脆留出位置,刚好作为后期空调的安装

▲厨房长条形,没有窗户,采光仅靠洗衣间门洞的光线,所以大面积小白砖,为了增加层次和温馨度,地柜采用木色,吊柜采用白色,不仅视觉明亮,同时有了层次感,木色提升空间温馨度

▲厨房的另一个角度,一字橱柜布局,门口刚好预留冰箱收纳。整体满足功能,同时又清爽干净

▲卫生间窗户很小,而且窗户是通向洗衣阳台,而非室外,所以采光并不好。大面积采用爵士白石材瓷砖,搭配黑色浴柜,黑色五金配置,视觉同样干净清爽
声明:文章仅代表原作者观点,不代表本站立场;如有侵权、违规,可直接反馈本站,我们将会作修改或删除处理。