72㎡刚需小两房,卧室移下门,储物量翻倍,厨房设计更巧妙,实用
这是一套普通的刚需小两房,可能在很多人眼里,它既非大豪宅,装修又没人家样板间精致,根本不值一晒。但对于我们这些非富非贵普通家庭出身的外地人来说,能在这座城市拥有一个专属于自己的小窝,真的是特别让人兴奋的事,尤其是为了买房,我和老公还产生过分歧,差点就一拍两散了。因为老公认为现在房价在高位,他想等等再买,而我坚持刚需房当下就得买,哪怕让我天天啃馒头吃咸菜,我也甘愿。两人僵持了好几个月,最终在双方父母的劝说及支持下,才有了现在这套小房子,所以我是格外珍惜的。房子装修的时候,也没有特意找人设计,就找装修队完成了最简单的基装,之后,家具家电及软装这些,都是我一点一点添置起来的,谈不上高不大上,但清爽温馨很实用。尤其是自己亲历亲为打造出来的,更带有一种特别的感情,忍不住上来分享一下。


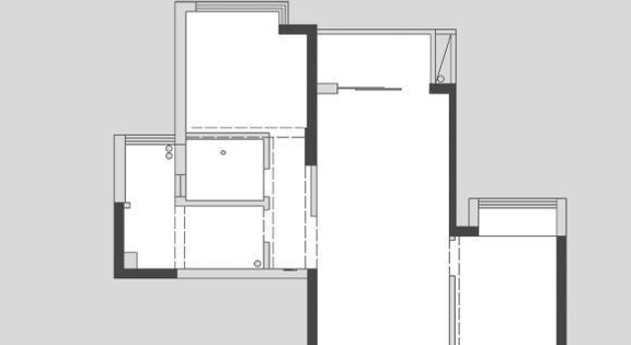
户型的改动上其实并不大,主要是将生活阳台并到厨房里了,然后主卧的门向左移了一部分,顺带着将洗手台挪到卫生间外面了。具体的,大家可以参照下面实景图看看。


我家进门就是餐厅,还要留出走道和放置鞋柜的空间出来,略有点挤,所以餐厅这边就靠墙打了卡座,既省地儿,也能多出一些收纳空间来。而入户门另一侧则靠墙摆放了个鞋柜,还钉了个简易的衣帽钩在门口,手上衣物随手就能挂起来,非常实用。另外,为了不让室内显得过于单调,我们在白色的主基调上,又加入了一些莫兰迪色系,像餐厅和客厅的背景墙就刷成了烟粉色,搭配暖黄的光源,特别的温馨有氛围。



厨房与生活阳台打通连为一体后,面积大了许多,所以我们把厨房的门往里面挪了一部分,以冰箱为界,门里面是中厨区,外面是西厨区。高柜旁边的过道上,还放着一张小吧台,既能充当西厨操作台,又是家里的休闲角,上面的吊柜和置物架,还可用来收纳烘焙用品。实用又有情调。


主卧的门洞左移后,卫生间变小了,过道变宽了,多出的空间刚好可以将洗手台挪过来与卫浴间分区。卫浴间里面呢,也用玻璃隔断隔开淋浴房做了干湿分离。

从阳台的角度望向门口,可以看到整个空间在视野上一览无余,非常的通透敞亮。




客厅的沙发背景墙刷成柔和的烟粉色,既提亮了空间,又不会显得太过夺目,与室内浅色的主基调非常的吻合。电视背景墙直接做成了收纳柜,错落有序的大小储物格或呈开放式或呈封闭式展现,既实用又有层次感。顶上还留了装投影幕布的凹槽。




两个卧室都不大,所以装修上,都是以简约实用为主的。得亏把卧室的门向左移了一部分,才有了现在这样一整面顶天立地的衣橱,不然,卧室的储物空间肯定是不够的。卧室的色彩搭配上,我是对照了网上好多装修效果图后才选中的。像这种粉与灰的组合配色吧,甜美又不会发腻,非常的淡雅耐看。床头柜,我没买常规的那种,因为我想要有个梳妆台,但只有床头边可以放,所以另一侧,就配了个尺寸合适的带有抽屉的小边几了。整体看着还蛮搭的,满足了实用性又有个性。


儿童房这边,为了增加其实用性,买了底部有抽屉、床尾有衣柜的一体床,省下的空间,刚好可以放一张小书桌,飘窗一侧还掏了个壁橱出来当书架。基本上能用的空间都给利用上了。另外还在书桌上面的墙上订了一些造型可爱的置物架,可以做装饰也可以放些学习用品。好看又实用。
虽然这套房子只有72平米,但空间利用得还是非常合理的。厨房与生活阳台合并后,中西厨都有了,卧室的门移了下位置,储物容量都翻倍了。装修上虽没有样板间精致,但自认为还是挺清爽温馨实用的。大家觉得呢?
声明:文章仅代表原作者观点,不代表本站立场;如有侵权、违规,可直接反馈本站,我们将会作修改或删除处理。